VARA
Kezdőlap
Ingatlanok
Hírek
Értékbecslés
Karrier
Kapcsolat
Főoldal
Válassz kategóriát
Ház
Intézmény
Ipari
Iroda
Irodaépület
Lakás
Mezőgazdasági
Parkoló
Telek
Tároló
Vendéglátás
Általános
Üzlethelyiség
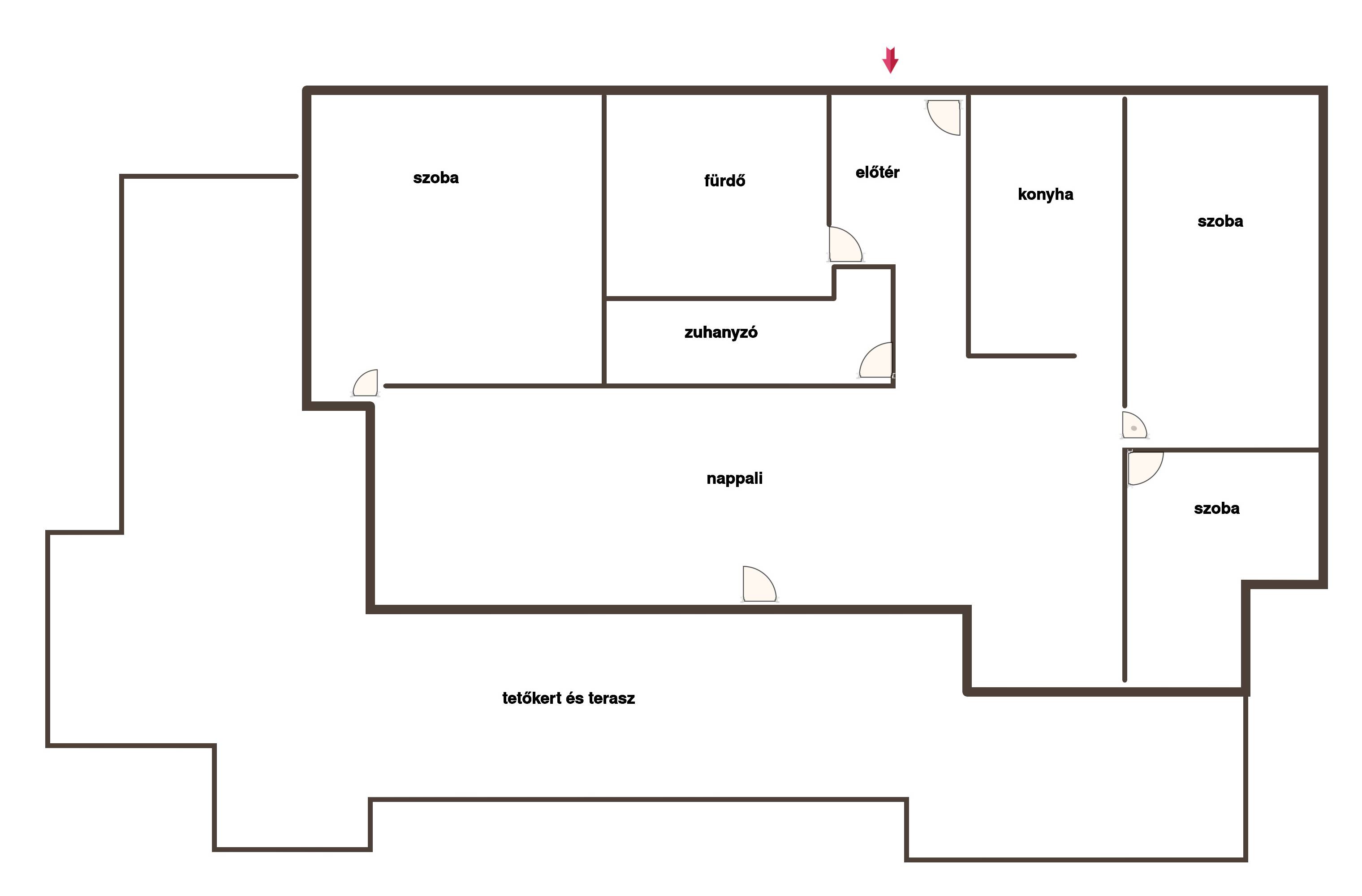
Eladó Lakás, Budapest 13. ker.
REFERENCIA SZÁM: LK075348
235 000 000
Méret:
92 m
2
Szobák száma:
4
Fűtés:
Házközponti egyedi mérővel
ADATOK
Ingatlan Típus
Lakás
Város
Budapest 13. ker.
Méret
92 m
2
Állapot
5 - Nagyon jó
Épület állapota kívül
5 - Nagyon jó
Épület állapota belül
5 - Nagyon jó
Emelet
5
Szobák száma
4
Épületszerkezet
Tégla
Fűtés
Házközponti egyedi mérővel
Erkély
2
Lift
Hívó
Tájolás
K
Fürdőszoba száma
2
Lépcsőház típusa
Zárt
Emeletek száma
5
LK075348
Önnek tetszik az ingatlan?
Kiri Gitta
Értékesítő
+36 30 3515811
kiri.gitta@dh.hu
VARA
Site by keresoguru