VARA
Kezdőlap
Ingatlanok
Hírek
Értékbecslés
Karrier
Kapcsolat
Főoldal
Válassz kategóriát
Ház
Intézmény
Ipari
Iroda
Irodaépület
Lakás
Mezőgazdasági
Parkoló
Telek
Tároló
Vendéglátás
Általános
Üzlethelyiség
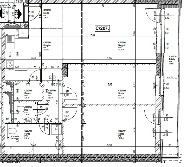
Eladó Lakás, Budapest 13. ker.
REFERENCIA SZÁM: LK087274
119 350 000
Méret:
73 m
2
Szobák száma:
3
Fűtés:
Távfűtés egyedi mérővel
ADATOK
Ingatlan Típus
Lakás
Város
Budapest 13. ker.
Méret
73 m
2
Állapot
5 - Nagyon jó
Épület állapota kívül
5 - Nagyon jó
Épület állapota belül
5 - Nagyon jó
Emelet
2
Szobák száma
3
Épületszerkezet
Tégla
Fűtés
Távfűtés egyedi mérővel
Erkély
1
Lift
Hívó
Tájolás
K
Fürdőszoba száma
1
Lépcsőház típusa
Zárt
Emeletek száma
7
LK087274
Önnek tetszik az ingatlan?
Kiri Gitta
Értékesítő
+36 30 3515811
kiri.gitta@dh.hu
VARA
Site by keresoguru