VARA
Kezdőlap
Ingatlanok
Hírek
Értékbecslés
Karrier
Kapcsolat
Főoldal
Válassz kategóriát
Ház
Intézmény
Ipari
Iroda
Irodaépület
Lakás
Mezőgazdasági
Parkoló
Telek
Tároló
Vendéglátás
Általános
Üzlethelyiség
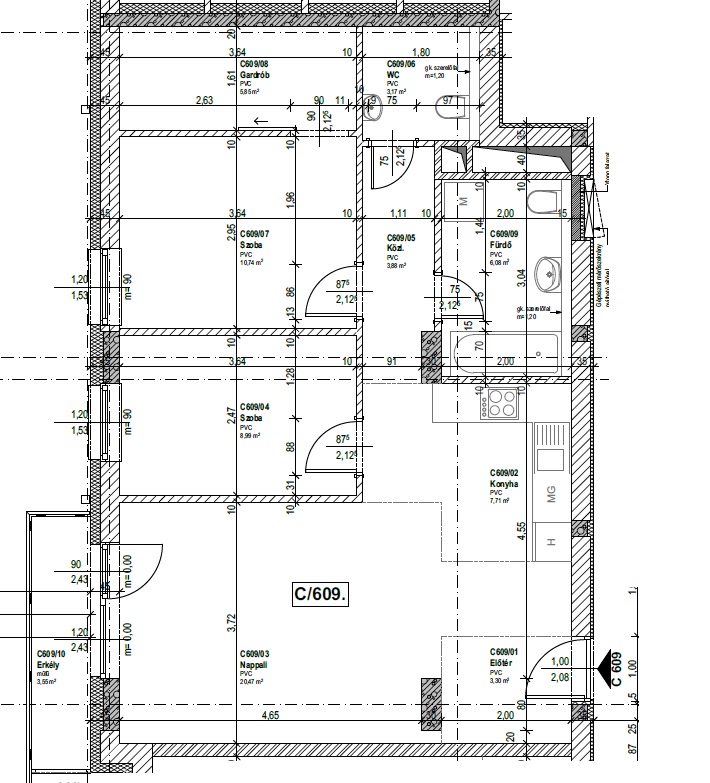
Eladó Lakás, Budapest 13. ker.
REFERENCIA SZÁM: LK018243
111 600 000
Méret:
72 m
2
Szobák száma:
3
Fűtés:
Távfűtés egyedi mérővel
ADATOK
Ingatlan Típus
Lakás
Város
Budapest 13. ker.
Méret
72 m
2
Állapot
5 - Nagyon jó
Épület állapota kívül
5 - Nagyon jó
Épület állapota belül
5 - Nagyon jó
Emelet
6
Szobák száma
3
Épületszerkezet
Tégla
Fűtés
Távfűtés egyedi mérővel
Erkély
1
Lift
Hívó
Tájolás
NY
Fürdőszoba száma
1
Lépcsőház típusa
Zárt
Emeletek száma
8
LK018243
Önnek tetszik az ingatlan?
Fekete Gabriella
Értékesítő
+36 30 8143929
fekete.gabriella@dh.hu
VARA
Site by keresoguru