VARA
Kezdőlap
Ingatlanok
Hírek
Értékbecslés
Karrier
Kapcsolat
Főoldal
Válassz kategóriát
Ház
Intézmény
Ipari
Iroda
Irodaépület
Lakás
Mezőgazdasági
Parkoló
Telek
Tároló
Vendéglátás
Általános
Üzlethelyiség
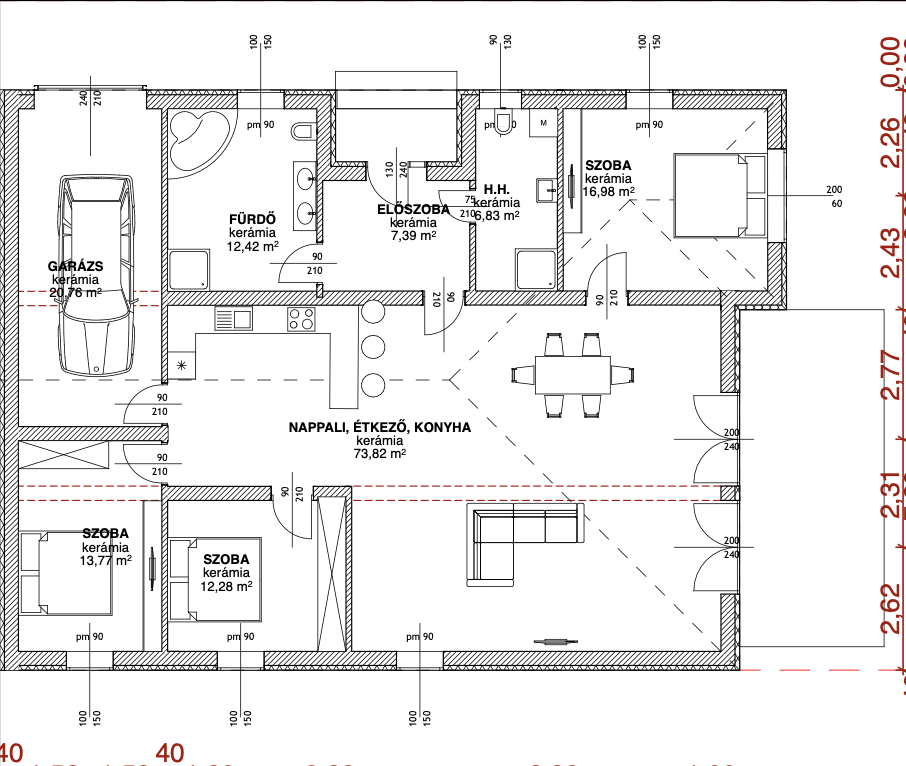
Eladó Ház, Budapest 18. ker.
REFERENCIA SZÁM: HZ081612
149 900 000
Méret:
164 m
2
Szobák száma:
4
Fűtés:
Hőszivattyú
ADATOK
Ingatlan Típus
Ház
Város
Budapest 18. ker.
Méret
164 m
2
Épület állapota kívül
6 - Új. ép.
Épület állapota belül
6 - Új. ép.
Szobák száma
4
Telek méret
500.00
Épületszerkezet
Tégla
Fűtés
Hőszivattyú
Ház típusa
Családi ház
Tájolás
DNY
Fürdőszoba száma
1
HZ081612
Önnek tetszik az ingatlan?
Tóth Éva
Értékesítő
+36706008190
eva.toth@dh.hu
VARA
Site by keresoguru