VARA
Kezdőlap
Ingatlanok
Hírek
Értékbecslés
Karrier
Kapcsolat
Főoldal
Válassz kategóriát
Ház
Intézmény
Ipari
Iroda
Irodaépület
Lakás
Mezőgazdasági
Parkoló
Telek
Tároló
Vendéglátás
Általános
Üzlethelyiség
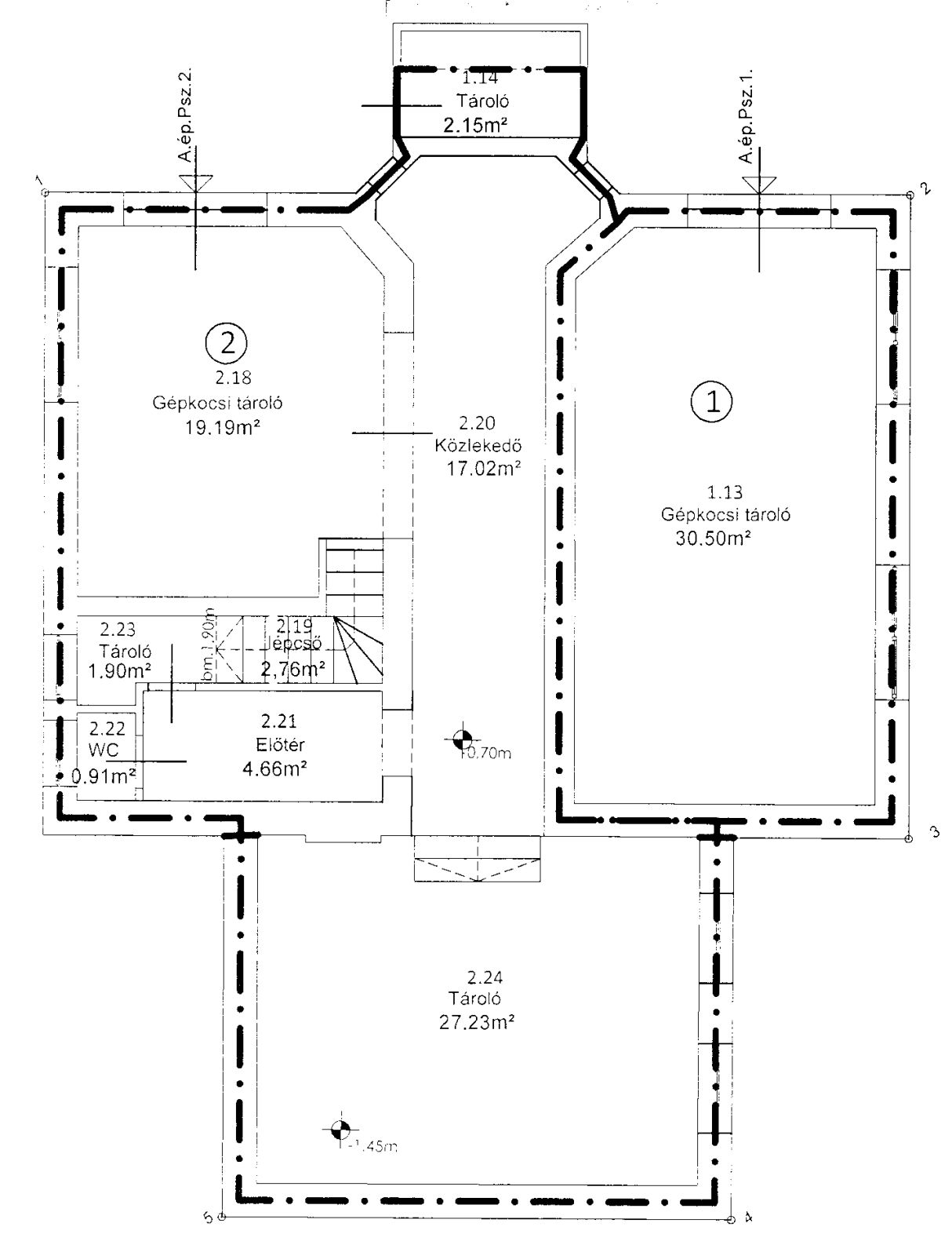
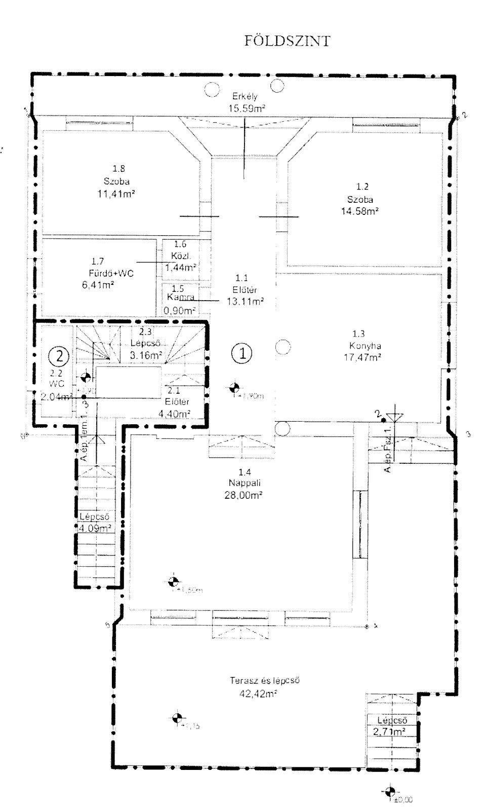
Eladó Ház, Budapest 18. ker.
REFERENCIA SZÁM: HZ085332
270 000 000
Méret:
386 m
2
Szobák száma:
9
Fűtés:
Gáz cirkó
ADATOK
Ingatlan Típus
Ház
Város
Budapest 18. ker.
Méret
386 m
2
Épület állapota kívül
5 - Nagyon jó
Épület állapota belül
5 - Nagyon jó
Szobák száma
9
Telek méret
745.00
Épületszerkezet
Tégla
Fűtés
Gáz cirkó
Ház típusa
Családi ház
Erkély
2
Tájolás
K
Fürdőszoba száma
3
HZ085332
Önnek tetszik az ingatlan?
Tóth Éva
Értékesítő
+36706008190
eva.toth@dh.hu
VARA
Site by keresoguru