VARA
Kezdőlap
Ingatlanok
Hírek
Értékbecslés
Karrier
Kapcsolat
Főoldal
Válassz kategóriát
Ház
Intézmény
Ipari
Iroda
Irodaépület
Lakás
Mezőgazdasági
Parkoló
Telek
Tároló
Vendéglátás
Általános
Üzlethelyiség
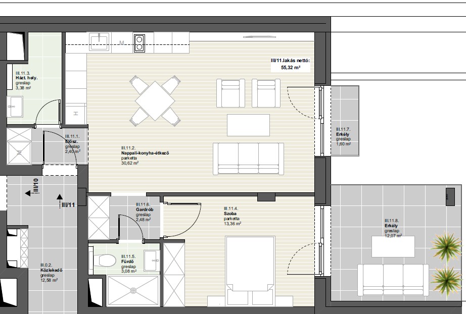
Eladó Lakás, Budapest 19. ker.
REFERENCIA SZÁM: PR021988-LK-26179
76 900 000
Méret:
53 m
2
Szobák száma:
2
Fűtés:
Padlófűtés
ADATOK
Ingatlan Típus
Lakás
Város
Budapest 19. ker.
Méret
53 m
2
Állapot
6 - Új. ép.
Épület állapota kívül
6 - Új. ép.
Épület állapota belül
6 - Új. ép.
Emelet
2
Szobák száma
2
Épületszerkezet
Tégla
Fűtés
Padlófűtés
Erkély
1
Lift
Hívó
Tájolás
ÉK
Fürdőszoba száma
1
Emeletek száma
5
PR021988-LK-26179
Önnek tetszik az ingatlan?
Fürediné Dukon Klára
Értékesítő
+36309144055
furedi.klara@dh.hu
VARA
Site by keresoguru