VARA
Kezdőlap
Ingatlanok
Hírek
Értékbecslés
Karrier
Kapcsolat
Főoldal
Válassz kategóriát
Ház
Intézmény
Ipari
Iroda
Irodaépület
Lakás
Mezőgazdasági
Parkoló
Telek
Tároló
Vendéglátás
Általános
Üzlethelyiség
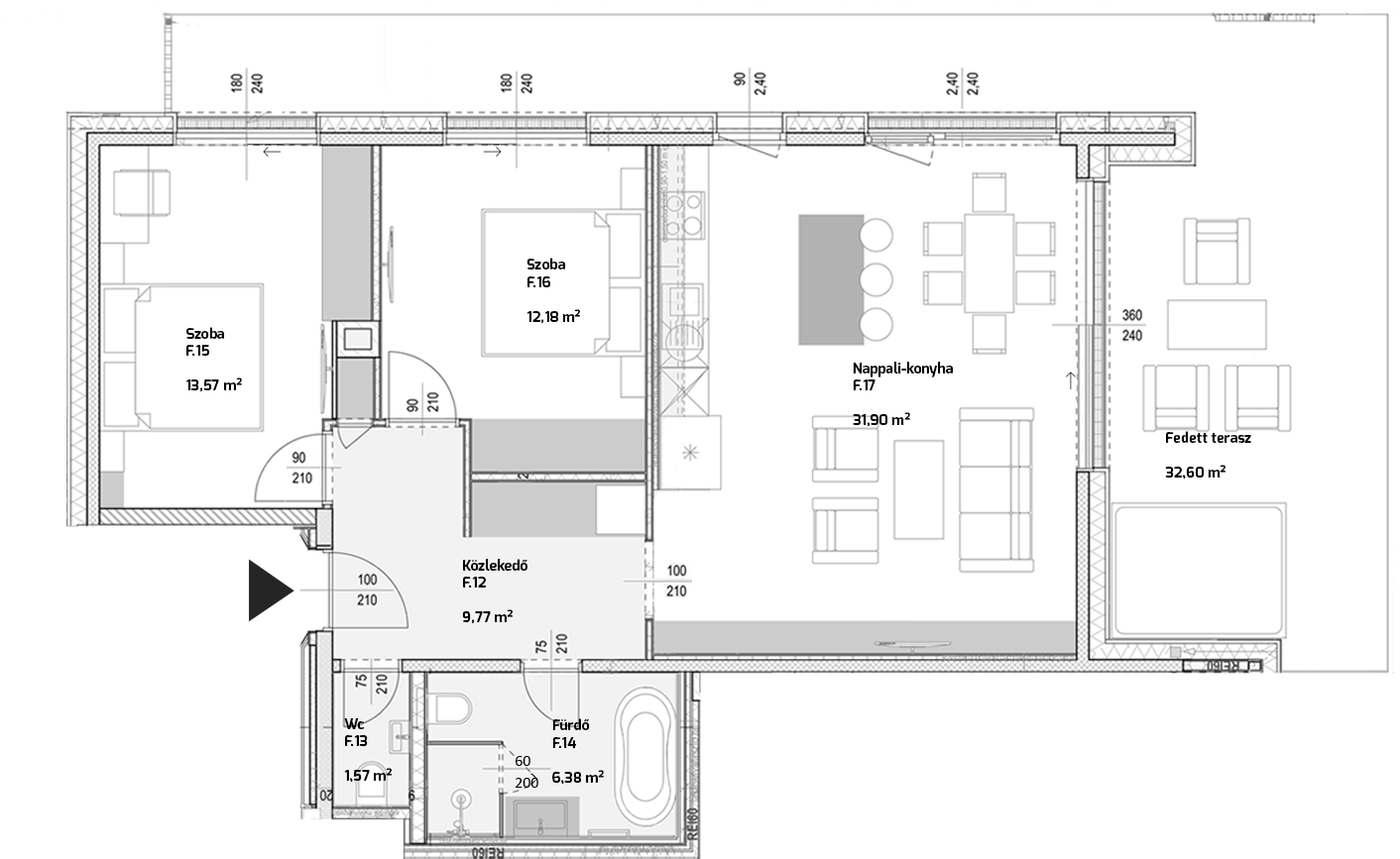
Eladó Lakás, Budapest 2. ker.
REFERENCIA SZÁM: PR018560-LK-26075
320 000 000
Méret:
96 m
2
Szobák száma:
3
Fűtés:
Hőszivattyú
ADATOK
Ingatlan Típus
Lakás
Város
Budapest 2. ker.
Méret
96 m
2
Állapot
6 - Új. ép.
Épület állapota kívül
6 - Új. ép.
Épület állapota belül
6 - Új. ép.
Emelet
Földszint
Szobák száma
3
Épületszerkezet
Tégla
Fűtés
Hőszivattyú
Erkély
1
Lift
Hívó
Tájolás
DNY
Fürdőszoba száma
1
Emeletek száma
2
PR018560-LK-26075
Önnek tetszik az ingatlan?
Fekete Gabriella
Értékesítő
+36 30 8143929
fekete.gabriella@dh.hu
VARA
Site by keresoguru