VARA
Kezdőlap
Ingatlanok
Hírek
Értékbecslés
Karrier
Kapcsolat
Főoldal
Válassz kategóriát
Ház
Intézmény
Ipari
Iroda
Irodaépület
Lakás
Mezőgazdasági
Parkoló
Telek
Tároló
Vendéglátás
Általános
Üzlethelyiség
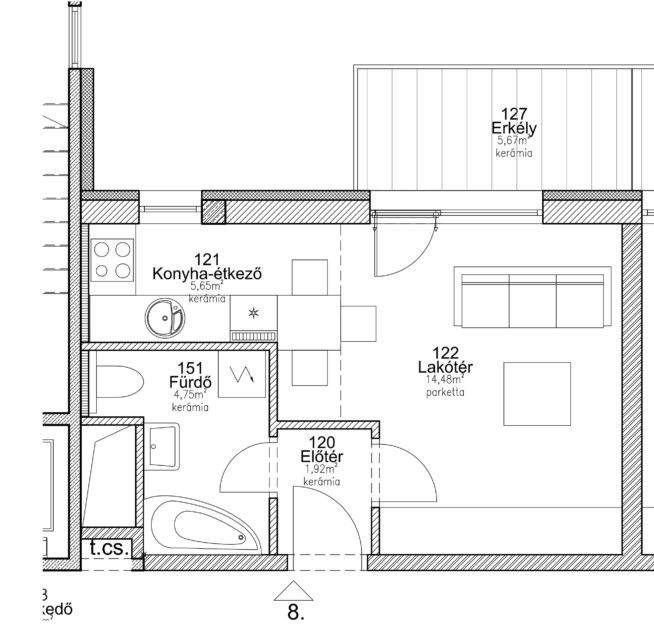
Eladó Lakás, Budapest 8. ker.
REFERENCIA SZÁM: PR089730-LK-24225
49 000 000
Méret:
30 m
2
Szobák száma:
1
Fűtés:
Mennyezeti hűtés-fűtés
ADATOK
Ingatlan Típus
Lakás
Város
Budapest 8. ker.
Méret
30 m
2
Állapot
6 - Új. ép.
Épület állapota kívül
6 - Új. ép.
Épület állapota belül
6 - Új. ép.
Emelet
2
Szobák száma
1
Épületszerkezet
Tégla
Fűtés
Mennyezeti hűtés-fűtés
Erkély
1
Lift
Hívó
Tájolás
É
Fürdőszoba száma
1
Emeletek száma
7
PR089730-LK-24225
Önnek tetszik az ingatlan?
Ivády István
Értékesítő
+36309490830
ivady.istvan@dh.hu
VARA
Site by keresoguru