VARA
Kezdőlap
Ingatlanok
Hírek
Értékbecslés
Karrier
Kapcsolat
Főoldal
Válassz kategóriát
Ház
Intézmény
Ipari
Iroda
Irodaépület
Lakás
Mezőgazdasági
Parkoló
Telek
Tároló
Vendéglátás
Általános
Üzlethelyiség
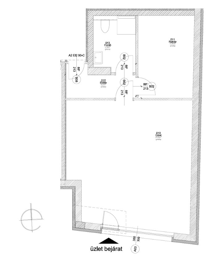
Eladó Üzlethelyiség, Budapest 8. ker.
REFERENCIA SZÁM: PR089730-UZ-24415
62 000 000
Méret:
42 m
2
Fűtés:
Mennyezeti hűtés-fűtés
ADATOK
Ingatlan Típus
Üzlethelyiség
Város
Budapest 8. ker.
Méret
42 m
2
Állapot
6 - Új. ép.
Épület állapota kívül
6 - Új. ép.
Épületszerkezet
Tégla
Fűtés
Mennyezeti hűtés-fűtés
Tájolás
D
Fürdőszoba száma
1
PR089730-UZ-24415
Önnek tetszik az ingatlan?
Fürediné Dukon Klára
Értékesítő
+36309144055
furedi.klara@dh.hu
VARA
Site by keresoguru