VARA
Kezdőlap
Ingatlanok
Hírek
Értékbecslés
Karrier
Kapcsolat
Főoldal
Válassz kategóriát
Ház
Intézmény
Ipari
Iroda
Irodaépület
Lakás
Mezőgazdasági
Parkoló
Telek
Tároló
Vendéglátás
Általános
Üzlethelyiség
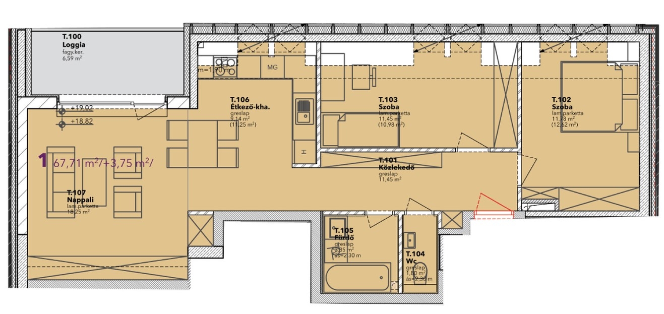
Eladó Lakás, Budapest 9. ker.
REFERENCIA SZÁM: LK041352
133 410 900
Méret:
68 m
2
Szobák száma:
3
Fűtés:
Hőszivattyú
ADATOK
Ingatlan Típus
Lakás
Város
Budapest 9. ker.
Méret
68 m
2
Állapot
6 - Új. ép.
Épület állapota kívül
6 - Új. ép.
Épület állapota belül
6 - Új. ép.
Emelet
6
Szobák száma
3
Épületszerkezet
Tégla
Fűtés
Hőszivattyú
Erkély
1
Lift
Hívó
Tájolás
DK
Fürdőszoba száma
1
Lépcsőház típusa
Zárt
Emeletek száma
6
LK041352
Önnek tetszik az ingatlan?
Tóth Éva
Értékesítő
+36706008190
eva.toth@dh.hu
VARA
Site by keresoguru